


產品概述
KYN28A-12型鎧裝移開式交流金屬封閉開關設備,因其真空斷路器開關常放在中間,所以簡稱為中置柜。適用于三相交流50Hz電力系統,用于接受和分配電能并對電路實行控制、保護及監測。

KYN28-12高壓開關柜概述
KYN28-12型鎧裝移開式交流金屬封閉開關設備,因其真空斷路器開關常放在中間,所以簡稱為KYN28-12中置柜。適用于三相交流50Hz電力系統,用于電力系統發電、輸電、配電、電能轉換和消耗中起著通斷、控制或保護等作用。額定電壓為3.6KV~12KV,其特點是配裝的真空斷路器為中置式,即斷路器位于開關柜前柜的中部,因此下部空間節省下來可用于其它方案的擴展或作為電纜室用。主要應用場合有:城市居民、大型二次變電站、開閉所、工礦企業、商場、機場、地鐵、風力發電、醫院、體育場、鐵路、隧道等。
KYN28-12中置柜型號及其含義

主要特點
1、高壓開關柜體結構采用敷鋁鋅板經CNC機床使用多重折彎工藝加工之后栓接而成。
2、所有操作均在柜門關閉狀態下進行。
3、防護等級高,可防止雜物和蟲害侵入。
4、簡單有效的"五防"閉鎖,防止誤操作。
5、可配用VS1及VD4型真空斷路器。
6、更換斷路器簡單,手車互換性能好。
7、柜體可靠墻安裝、柜前維護,減少占地面積。
8、電纜室空間充裕、可連接多根電纜。
9、斷路器室和電纜室可分別加裝加熱器,防止凝露與腐蝕發生。
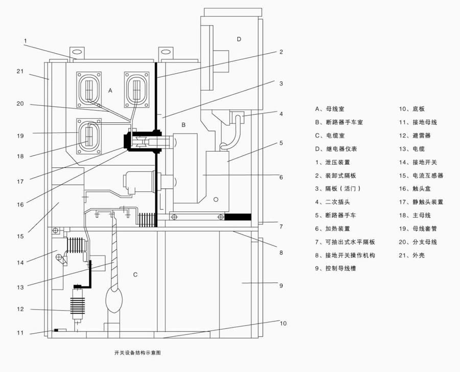
中置柜結構介紹
分為上中下三層,其中上層是母線室和儀表室,儀表室在前面、母線室在后面,兩個小室之間有隔板隔開。中間層為開關室,是放置真空斷路器的隔室,斷路器采用手車式真空斷路器,安裝方便,維修和更換時只需要將斷路器小車推出即可,無需斷電。下層為電纜室,空間充足,可以連接多條電纜。

五防聯鎖功能
1、防止帶負荷合閘:真空斷路器小車在試驗位置合閘后,小車斷路器無法進入工作位置。
2、防止帶接地線合閘:接地刀在合位時,小車斷路器無法進合閘。
3、防止誤入帶電間隔:真空斷路器在合閘工作時,盤柜后門用接地刀上的機械與柜門閉鎖。
4、防止帶電掛接地線:真空斷路器在工作時合閘,合接地刀無法投入。
5、防止帶負荷拉刀閘:真空斷路器在工作合閘運行時,無法退出小車斷路器的工作位置。